Používame cookies

Súbory cookie a ďalšie technológie sledovania používame na zlepšenie vášho zážitku z prehliadania našich webových stránok, na to, aby sme vám zobrazovali prispôsobený obsah a cielené reklamy, na analýzu návštevnosti našich webových stránok a na pochopenie toho, odkiaľ naši návštevníci prichádzajú. Viac info

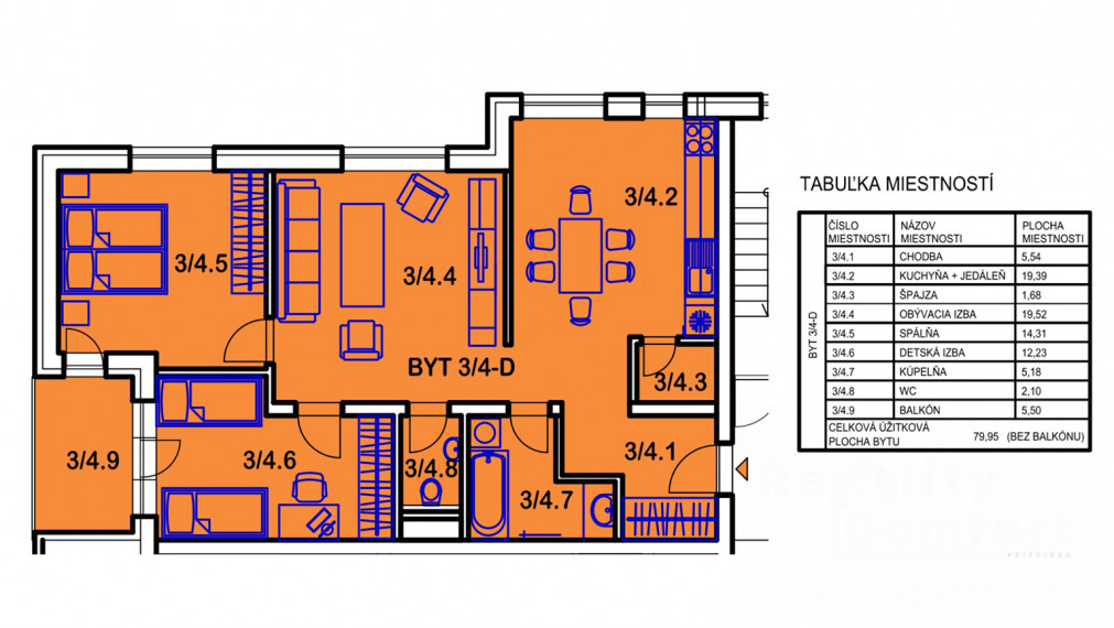
3-izb. byt v novostavbe SEVERKA

Interné ID: 4D
Ulica: J. Matušku
Mestská časť: Sever
Obec: Bánovce nad Bebravou
Okres: Bánovce nad Bebravou
Kraj: Trenčiansky kraj
Druh: Byty
Typ: Predaj
Typ bytu: 3-izbový byt
Predané

Popis nehnuteľnosti:

VYBERTE SI SVOJE NOVÉ BÝVANIE V SEVERKE
Predstavte si ten pocit, keď po dlhom čase konečne nájdete to, čo hľadáte. Tomu pocitu sa len tak niečo nevyrovná, však? Byty v našej novostavbe sú navrhnuté tak, aby Vám tento pocit priniesli. Projekt novostavby bytov SEVERKA na ul. J. Matušku je nový projekt rezidenčného bývania v Bánovciach n/B., situovaný na začiatku mestskej časti Sever. Nové byty na predaj sú len 5 minút pešo od centra mesta, v tichej lokalite, v blízkosti prírody. 

Bytový dom je navrhnutý ako 4 podlažný, kde na najnižšom podlaží sú situované kancelárie, ozdravovacie štúdio a pivničné priestory, ostatné 3 nadzemné podlažia sú obytné - spolu 12 bytových jednotiek (2 a 3 izbové byty). Každý byt ma loggiu a prináleží k nemu 1 pivničná kobka. S parkovaním si tiež hlavu lámať nemusíte - k projektu prislúcha aj vonkajšie parkovisko, ktoré garantuje 1 parkovacie miesto pre každý byt v cene. 

Momentálne je bytový dom v štádiu ukončenia výstavby hrubej stavby, s predpokladaným termínom kolaudácie marec 2021. Byt "4D" sa nachádza na  4 nadzemnom podlaží (3.poschodie). Konečná cena 3-izb. bytu "4D" o celkovej výmere 104 m2 (byt 79,95 m2, loggia 5,50 m2, pivnica 5,26 m2, 1 parkovacie miesto 13 m2 a podiel na spoločných pozemkoch)  je 111.085 EUR vrátane DPH.

Architektonické a materiálové riešenie bytového domu je postavené na použití čistých a jednoduchých tvarov. Materiálové a farebné riešenie nadväzuje na prírodný ráz miesta. Vysoký dôraz je na kvalitu použitých materiálov a technológií. Stavba je postavená z kvalitnej tehly Porotherm, zatepená bude polystyrénom a minerálnou vlnou. Byty sú ponúkané na predaj v štandarde HOLOBYT – so zabudovanou elektroinštaláciou, vodoinštaláciou a kanalizáciou, vrátane vývodov pre práčku, umývačku riadku, digestor, sanitu a pod. Plynové podlahové vykurovanie, so samostatným meraním v každom byte a solárne panely na streche pre ohrev teplej vody garantujú nízke náklady na bývanie. 

Pri kúpe bytu získate ako bonus od REALITY COMFORT nasledovné služby architekta z designového štúdia ARTAMI :
- Analýza existujúceho stavu bytu
- Pomoc pri definovaní potrieb a požiadaviek klienta
- Odporúčania a rady ohľadom dispozičného riešenia a farebnosti

Bližšie informácie Vám poskytne na tel.č. 0905 439 857 p. Naďa Zaťková.

 

Popis nehnuteľnosti - text a fotodokumentácia sú majetkom a autorským dielom spoločnosti Reality Comfort Prievidza

 

Vlastnosti

Status:
predané
Vlastníctvo:
osobné
Stav:
novostavba
Celková plocha:
104 m2
Úžitková plocha:
79.95 m2
Typ poschodia:
posledné poschodie
Poschodie:
3
Loggia plocha:
5,50 m2
Loggia:
áno
Počet podlaží:
3
Počet izieb:
3
Kúpeľňa:
áno
Počet kúpeľní:
1
Výťah:
nie
Energetický certifikát:
áno
El. napätie:
230V
Parkovanie:
vlastné vyhradené
Voda:
verejný vodovod
Internet:
áno - káblový rozvod
Materiál:
tehla
Zateplený objekt:
plánuje sa
Vykurovanie:
vlastné - plyn
Pivnica:
áno
Pivnica plocha:
5.26 m2

Virtuálna prehliadka

 

Informatívna úverová kalkulačka

Pozrieť na mape

Realitný poradca

Nadežda Zaťková

Nadežda Zaťková

realitný poradca pre okres Bánovce n/Bebravou

  • Slovensky
  • Česky
  • Pусский


Radi Vám poradíme