
Ulica: | J. Matušku |
---|---|
Mestská časť: | Sever |
Obec: | Bánovce nad Bebravou |
Okres: | Bánovce nad Bebravou |
Kraj: | Trenčiansky kraj |
Druh: | Developerské projekty |
Typ: | Predaj |
Typ projektu: | Výstavba bytov |
VYBERTE SI SVOJE NOVÉ BÝVANIE V SEVERKE
Predstavte si ten pocit, keď po dlhom čase konečne nájdete to, čo hľadáte. Tomu pocitu sa len tak niečo nevyrovná, však? Byty v našej novostavbe sú navrhnuté tak, aby Vám tento pocit priniesli. Projekt novostavby bytov SEVERKA na ul. J. Matušku je nový projekt rezidenčného bývania v Bánovciach n/B., situovaný na začiatku mestskej časti Sever. Nové byty na predaj sú len 5 minút pešo od centra mesta, v tichej lokalite, v blízkosti prírody.
Bytový dom je navrhnutý ako 4 podlažný, kde na najnižšom podlaží sú situované kancelárie, ozdravovacie štúdio a pivničné priestory, ostatné 3 nadzemné podlažia sú obytné. Architektonické a materiálové riešenie bytového domu je postavené na použití čistých a jednoduchých tvarov. Materiálové a farebné riešenie nadväzuje na prírodný ráz miesta. Vysoký dôraz je na kvalitu použitých materiálov a technológií.
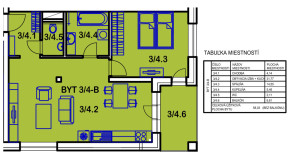
Momentálne je bytový dom v štádiu výstavby, s predpokladaným termínom kolaudácie marec 2021. Byty sa nachádzajú na 2 až 4 podlaží - spolu 12 bytových jednotiek (2 a 3 izbové byty). Každý byt ma loggiu a prináleží k nemu 1 pivničná kobka. S parkovaním si tiež hlavu lámať nemusíte - k projektu prislúcha aj vonkajšie parkovisko, ktoré ponúka 1 parkovacie miesto pre každý byt v cene.
Stavba je postavená z kvalitnej tehly Porotherm, zatepená bude polystyrénom a minerálnou vlnou. Byty sú ponúkané na predaj v štandarde HOLOBYT – so zabudovanou elektroinštaláciou, vodoinštaláciou a kanalizáciou, vrátane vývodov pre práčku, umývačku riadku, digestor a pod. Plynové podlahové vykurovanie, so samostatným meraním v každom byte a solárne panely na streche pre ohrev teplej vody garantujú nízke náklady na bývanie.
Pri kúpe bytu získate ako bonus od REALITY COMFORT nasledovné služby architekta z designového štúdia ARTAMI :
- Analýza existujúceho stavu bytu
- Pomoc pri definovaní potrieb a požiadaviek klienta
- Odporúčania a rady ohľadom dispozičného riešenia a farebnosti
Bližšie informácie Vám poskytne na tel.č. 0905 439 857 p. Naďa Zaťková.
Popis nehnuteľnosti - text a fotodokumentácia sú majetkom a autorským dielom spoločnosti Reality Comfort Prievidza
realitný poradca pre okres Bánovce n/Bebravou