Používame cookies

Súbory cookie a ďalšie technológie sledovania používame na zlepšenie vášho zážitku z prehliadania našich webových stránok, na to, aby sme vám zobrazovali prispôsobený obsah a cielené reklamy, na analýzu návštevnosti našich webových stránok a na pochopenie toho, odkiaľ naši návštevníci prichádzajú. Viac info

REZIDENCIA BOJNICE - moderné byty v blízkosti prírody

Interné ID: 2_01_01
Ulica: Dubnica
Mestská časť: Dubnica
Obec: Bojnice
Okres: Prievidza
Kraj: Trenčiansky kraj
Druh: Byty
Typ: Predaj
Typ bytu: 3-izbový byt
Predané

Popis nehnuteľnosti:

REZIDENCIA BOJNICE je novovznikajúca lokalita mesta, kombinujúca výstavbu moderného obytného súboru so 60 bytovými jednotkami s cieľom v maximálnej možnej miere využiť danosti územia pre príjemné a atraktívne bývanie v bytových jednotkách, s komfortom približujúcim sa bývaniu v rodinnom dome.

Obytný súbor pozostáva zo 60 bytových jednotiek, ktoré sú situované do 5 totožných obytných blokov. Každý obytný blok tvoria vždy 3 rovnaké obytné sekcie po 4 byty. Ako na prízemí  tak i na poschodí každej obytnej sekcie sa nachádza jeden dvojizbový a jeden trojizbový byt. Pivnice pre všetky byty sú umiestnené na prízemí každej sekcie. Byty na prízemí obsahujú okrem terasy aj predzáhradky. Každý byt na poschodí zasa disponuje priestranným balkónom. Všetky stavby obytného súboru budú napojené na inžinierske siete, ktoré budú vybudované v rámci výstavby celého areálu. Súčasťou výstavby je aj prístupová komunikácia s parkovacími miestami v cene bytu. Predbežný termín kolaudácie bytov je Máj 2022.

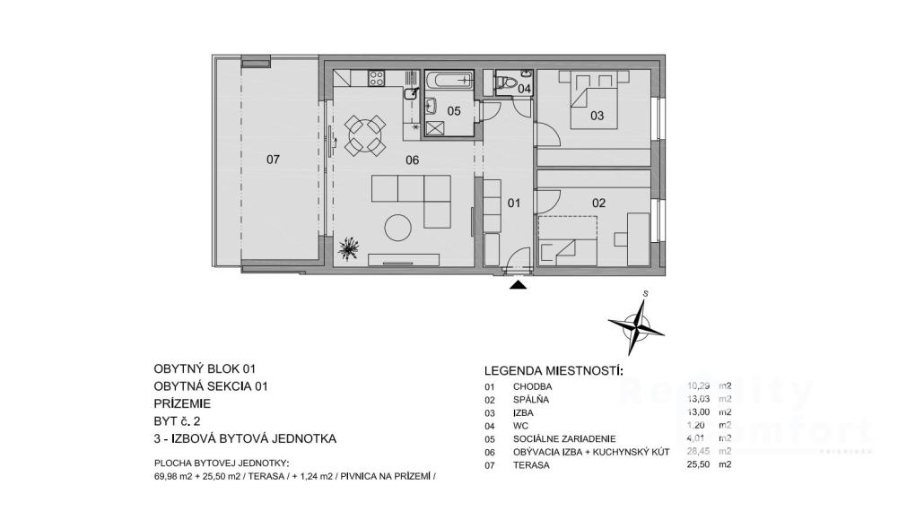
Byt č. 2 je 3-izbový (69,98 m2), nachádza sa na prízemí obytnej sekcie č.1, prináleží k nemu priestranná terasa o výmere 25,50 m2, pivnica a parkovacie miesto. Podrobné informácie k bytu a príslušenstvu sú uvedené v pôdoryse, ktorý je súčasťou galérie.

Bojnice sú vyhľadávaným turistickým mestom - azda najznámejším miestom v meste je Bojnický zámok, ktorého návštevu ocenia všetky generácie. V tesnej blízkosti zámku sa nachádza taktiež najväčšia ZOO na Slovensku. Veľmi obľúbenou atrakciou je vyhliadková veža nad mestom - Čajka v oblakoch. Vzhľadom na turistický potenciál mesta tu nájdete množstvo kvalitných reštaurácii a barov.

Bližšie informácie o projekte nájdete na: www.rezidenciabojnice.sk

Vlastnosti

Status:
predané
Vlastníctvo:
osobné
Stav:
novostavba
Celková plocha:
95.48 m2
Úžitková plocha:
95.48 m2
Typ poschodia:
prízemie
Počet podlaží:
1
Počet izieb:
3
Kúpeľňa:
áno
El. napätie:
230V
Parkovanie:
vlastné vyhradené
Voda:
verejný vodovod
Internet:
áno - káblový rozvod
Zateplený objekt:
plánuje sa
Terasa:
áno
Terasa plocha:
25.5 m2
Vykurovanie:
vlastné - elektrické
Pivnica:
áno
Pivnica plocha:
1.24 m2

Pozrieť na mape

Realitný poradca

JUDr. Ľubica Hrdá

JUDr. Ľubica Hrdá

majiteľka realitnej kancelárie

  • Slovensky
  • Česky
  • Deutsch
  • Pусский
  • English


Radi Vám poradíme