
Interné ID: | 11_03_01 |
---|---|
Ulica: | Dubnica |
Mestská časť: | Dubnica |
Obec: | Bojnice |
Okres: | Prievidza |
Kraj: | Trenčiansky kraj |
Druh: | Byty |
Typ: | Predaj |
Typ bytu: | 3-izbový byt |
REZIDENCIA BOJNICE je novovznikajúca lokalita mesta, kombinujúca výstavbu moderného obytného súboru so 60 bytovými jednotkami s cieľom v maximálnej možnej miere využiť danosti územia pre príjemné a atraktívne bývanie v bytových jednotkách, s komfortom približujúcim sa bývaniu v rodinnom dome.
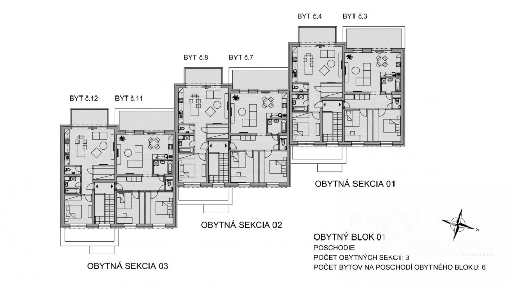
Obytný súbor pozostáva zo 60 bytových jednotiek, ktoré sú situované do 5 totožných obytných blokov. Každý obytný blok tvoria vždy 3 rovnaké obytné sekcie po 4 byty. Ako na prízemí tak i na poschodí každej obytnej sekcie sa nachádza jeden dvojizbový a jeden trojizbový byt. Pivnice pre všetky byty sú umiestnené na prízemí každej sekcie. Byty na prízemí obsahujú okrem terasy aj predzáhradky. Každý byt na poschodí zasa disponuje priestranným balkónom. Všetky stavby obytného súboru budú napojené na inžinierske siete, ktoré budú vybudované v rámci výstavby celého areálu. Súčasťou výstavby je aj prístupová komunikácia s parkovacími miestami v cene bytu. Predbežný termín kolaudácie bytov je Máj 2022.
Byt č. 11 je 3-izbový (69,98 m2), nachádza sa na 1.poschodí obytnej sekcie č. 3, prináleží k nemu priestranný balkón (15,74 m2), pivnica a parkovacie miesto. Podrobné informácie k bytu a príslušenstvu sú uvedené v pôdoryse, ktorý je súčasťou galérie.
Bojnice sú vyhľadávaným turistickým mestom - azda najznámejším miestom v meste je Bojnický zámok, ktorého návštevu ocenia všetky generácie. V tesnej blízkosti zámku sa nachádza taktiež najväčšia ZOO na Slovensku. Veľmi obľúbenou atrakciou je vyhliadková veža nad mestom - Čajka v oblakoch. Vzhľadom na turistický potenciál mesta tu nájdete množstvo kvalitných reštaurácii a barov.
Bližšie informácie o projekte nájdete na: www.rezidenciabojnice.sk
majiteľka realitnej kancelárie