
Interné ID: | 21 B |
---|---|
Ulica: | Hviezdoslavova |
Obec: | Trenčianske Teplice |
Okres: | Trenčín |
Kraj: | Trenčiansky kraj |
Druh: | Byty |
Typ: | Predaj |
Typ bytu: | Garsónka |
PREDSTAVUJEME PROJEKT "REZIDENCIA THERMAE" - VÝNIMOČNÉ BÝVANIE V SRDCI KÚPEĽNÉHO MESTA
Rezidencia THERMAE ponúka rekonštrukciu, prístavbu a nadstavbu budovy v známom kúpeľnom meste Trenčianske Teplice. Tento jedinečný objekt je atraktívnou stavbou s výrazne funkcionalistickým vzhľadom, ktorý dotvárajú lukratívne terasy nad ustúpenými časťami podlaží. Nachádza sa v priamom susedstve kúpeľov, na okraji pešej zóny a ponúka miesto pre bežný život aj pre relax.
Hlavný vstup bude z Hviezdoslavovej ulice. Objekt sa skladá z jedného podzemného podlažia, piatich nadzemných podlaží a posledného šiesteho ustúpeného podlažia, pričom nadstavba počíta s dostavbou tohto podlažia a nadstavení nadštandardných mezonetov s lukratívnymi terasami. V budove je výťah, ku každému bytu prináleží pivničná kobka v cene a väčšina bytov má balkón alebo terasu. V ponuke je 72 bytov rôznych výmer (od 37 m2 do 170 m2): garsónky, jedno, dvoj, troj a štvorizbové byty, pričom na najvyššom podlaží sa budú nachádzať nadštandardné mezonety s veľkými terasami a na prízemí budú byty s predzáhradkou. K objektu prináleží taktiež 71 vonkajších parkovacích miest.
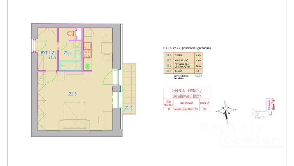
Byt č. 21 má 1 izbu (45,08 m2), balkón o výmere 3,47 m2 a pivnicu 1,54 m2. Nachádza sa na 2 poschodí obytného bloku B. Podrobné informácie k bytu a príslušenstvu sú uvedené v pôdoryse, ktorý je súčasťou galérie.
Svojím umiestnením v srdci Trenčianskych Teplíc vytvára Rezidencia THERMAE dominantu, ktorá bude ponúkať jej obyvateľom nielen blízku dostupnosť ku kompletnej občianskej vybavenosti, ale taktiež ku kultúre či relaxu v susediacich kúpeľoch.
Známe kúpeľné mestečko Trenčianske Teplice leží v údolí Strážovských vrchov, ohraničené je zmiešanými lesmi a vytvára tak harmóniu mesta a prírody. Centrum mesta, kde sa nachádza aj Rezidencia THERMAE, leží na prameňoch liečivej horúcej vody a práve preto patrili tieto kúpele medzi najvýznamnejšie už v Rakúsko-Uhorsku a dodnes sú to najnavštevovanejšie kúpele na Slovensku.
Pobyt v Trenčianskych Tepliciach je spojený nielen s príjemným prostredím malebného kúpeľného mestečka, ale aj s možnosťami kultúrneho a voľnočasového vyžitia počas celého roka. Prechádzky mestskou promenádou, či rozľahlým parkom boli oddávna neoddeliteľnou súčasťou kúpeľnej kultúry. Započúvať sa do živej promenádnej hudby, občerstviť sa dobrou kávou alebo tradičnými, ešte teplými, kúpeľnými oblátkami na lavičke v parku – to sú len tie najobyčajnejšie radosti, ktoré vystriedajú každodenné starosti uponáhľaného sveta.
Mesto očarí aj mnohými zaujímavosťami – unikátnym lesoparkom, prezliekárňou v maurskom slohu, medzinárodným filmovým festivalom, pitným prameňom s termálnou vodou, novým zrekonštruovaným letným kúpaliskom Zelená Žaba, ktoré je situované v lesnom prostredí kúsok od centra mesta, najstarším hudobným festivalom komornej hudby v strednej Európe, vyhliadkou s bielym jeleňom, vonkajším termálnym bazénom priamo na námestí, ktorý je otvorený celoročne, mestským kinom ap.
Trenčianske Teplice majú svoje neopakovateľné čaro. Kto ich nenavštívil, nedokáže si ho predstaviť.
Bližšie informácie nájdete na stránke projektu: www.rezidenciathermae.sk
VYUŽITE AKTUÁLNE UVÁDZACIE CENY !
majiteľka realitnej kancelárie